
5 Beds
5 Baths
3,000 SqFt
5 Beds
5 Baths
3,000 SqFt
Key Details
Property Type Single Family Home
Sub Type Single Family Residence
Listing Status Active
Purchase Type For Sale
Square Footage 3,000 sqft
Price per Sqft $996
MLS Listing ID 25540755
Style Modern
Bedrooms 5
Full Baths 4
Half Baths 1
Construction Status New Construction
HOA Y/N No
Year Built 2025
Lot Size 5,612 Sqft
Acres 0.1288
Property Sub-Type Single Family Residence
Property Description
Location
State CA
County Los Angeles
Area Palms - Mar Vista
Zoning LAR1
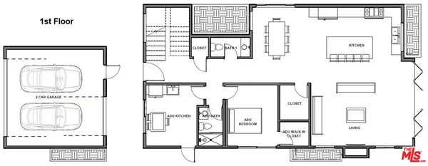
Rooms
Other Rooms Accessory Bldgs
Dining Room 1
Kitchen Remodeled, Island, Quartz Counters
Interior
Heating Central
Cooling Air Conditioning, Central
Flooring Hardwood
Fireplaces Type None
Equipment Dishwasher, Dryer, Garbage Disposal, Microwave, Refrigerator, Range/Oven, Washer
Laundry Inside, Laundry Area
Exterior
Parking Features Attached, Garage - 2 Car, Driveway
Garage Spaces 2.0
Pool None
View Y/N Yes
View Tree Top
Building
Story 2
Architectural Style Modern
Level or Stories Two
Construction Status New Construction
Others
Special Listing Condition Standard

The information provided is for consumers' personal, non-commercial use and may not be used for any purpose other than to identify prospective properties consumers may be interested in purchasing. All properties are subject to prior sale or withdrawal. All information provided is deemed reliable but is not guaranteed accurate, and should be independently verified.

"My job is to find and attract mastery-based agents to the office, protect the culture, and make sure everyone is happy! "





